Piazzetta dresda, rosso lava
Обрамление из майолики ручной работы с легким рельефным рисунком.
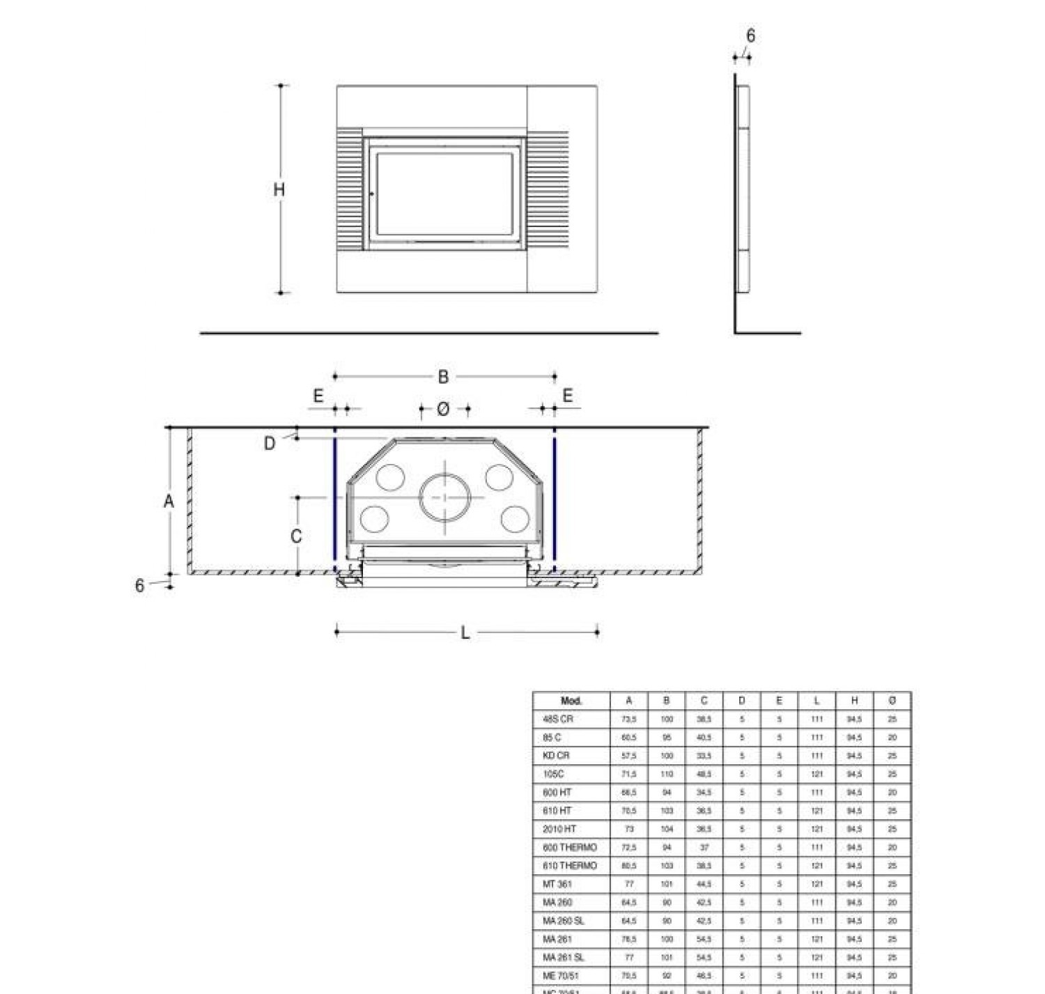
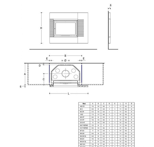
На фото представлена облицовка в цвете Grigio Ferro с дровяной топкой HT 610.
Камин с рамкой из майолики – это интересный способ украшения помещения в доме, а также идеальное средство для обогрева целого дома. Камин Dresda от итальянской компании Piazzetta является встроенным камином для установки в стену, также это средство для обогрева дома способно стать полноценным качественным предметом для разнообразия дизайна всего дома. Дымоход и топка этого камина находятся в стене, это позволяет в полной мере предоставлять качественное решение проблемы, связанной с нехваткой свободного места в пространстве дома. Этот камин от итальянской компании Piazzetta – миниатюрное творение мастеров. Камин имеет рамку-облицовку, сделанную из майолики ручной работы. По корпусу рамки проходит узор, который также выполнен вручную мастерами. Камин такого плана нужно за ранее спланировать, чтобы еще на стадии строительства определиться с замерами и оставить свободное пространство под конкретную топку и дымоход. Вы ведь потом, когда уже дом построен и сделан ремонт не станете устанавливать встроенный камин. Хотя, конечно, и такое возможно. Топка камина сделана в закрытой форме. Это строение доказывает, насколько хорошо топка способна помочь протопить пространство дома и сделать его более наполненным теплом и жаром пламени. Все дело в том, что в закрытом топочном пространстве возможно горение дров без всякого препятствования этому со стороны свежего комнатного воздуха, как это всегда происходит, если топка открыта. А через стеклянную внешнюю поверхность, сделанную из жаропрочного стекла, вы сможете полноценно наблюдать красивую картину – огонь в топке, который имеет свойство завораживать и пленить.
Топка камина Dresda работает очень качественно также благодаря высокой тепловой отдаче и коэффициенту полезного действия 80%. Это весьма качественные данные, которые также позволяют применять небольшое количество дровяного топлива.
Камин с рамкой из майолики элегантно опоясывает стеклянную топку. Майолика покрыта серебряной эмалью и смотрится эффектно и стильно. Камин Dresda от итальянской компании Piazzetta максимально разнообразит ваш интерьер и сделает много новых функциональных решений для вашего интерьера. Достоинства подобной облицовки из майолики – это весьма продолжительный срок службы и сохранение внешних данных долгий период.
![]() | Техническая информация |
- Производитель piazzetta
Стоит ли покупать биокамин Piazzetta dresda, rosso lava
доставка осуществляется за наш счёт.
Мы сотрудничаем с транспортными компаниями:








Доставка по Златоуст
При заказе от 50 000 рублей и предоплате 100% доставка осуществляется бесплатно
Срок доставки 1-3 дня
Самовывоз по Златоусту
Самовывоз осуществляется по адресу:
г. Златоуст, ул. имени И.В. Панфилова, 4А
Перед приездом просим Вас заранее нам позвонить по телефону +7-800-100-10-78, что бы мы успели подготовить Ваш заказ.
После выбора товара нажмите кнопку «В корзину» – товар добавится в вашу корзину.
Далее, если вы закончили выбирать товар, нажмите кнопку «Ваша корзина».
На странице «Ваша корзина» будут перечислены все выбранные вами товары.
В поле «Количество» вы можете изменить количество товара для покупки. После изменения количества товара необходимо
нажать кнопку «Пересчитать» для пересчета итоговой суммы заказа.
В колонке «Действия» над каждым товаром можно произвести следующие действия: либо удалить товар из корзины, либо
товар на будущее.
Также можно ввести код скидки в соответствующее поле.
После ввода необходимой информации о доставке товара (ФИО получателя, адрес доставки, контактные данные, вариант
доставки, способ оплаты и т.д.) для оформления заказа вам нужно нажать кнопку «Оформить заказ».
Копия заказа будет выслана на ваш e-mail, указанный при оформлении заказа.
Внимание! Неправильно указанный номер телефона, неточный или неполный адрес могут привести к дополнительной
задержке! Пожалуйста, внимательно проверяйте ваши персональные данные при регистрации и оформлении заказа.
Через некоторое время (обычно в течение часа) после оформления покупки, с вами свяжется наш менеджер по контактным
данным, указанным при оформлении заказа. С менеджером можно будет согласовать точное время и сроки доставки, а также
уточнить детали.
Примечание: Для постоянных клиентов на сайте магазина предусмотрена возможность регистрации. В своем кабинете вы
можете просмотреть содержимое корзины, историю своих заказов, а также повторить или отказаться от заказа, подписаться на
рассылку новостей магазина.
Цены, указанные на сайте, являются окончательными и не требуют доплат при стандартных условиях поставки. Все налоги
включены в стоимость товара.
Внимание! Для каждого отдельного заказа возможен только один способ оплаты на ваш выбор. Оплата заказа по частям
различными способами невозможна.
Возможные способы оплаты
Наличный расчет
Оплата производится наличными курьеру или в магазине при самовывозе. Вместе с товаром передается товарный и кассовый чеки, а также гарантийный талон
Безналичный расчет
Оплата производится наличными курьеру или в магазине при самовывозе. Вместе с товаром передается товарный и кассовый чеки, а также гарантийный талон
Индивидуальное проектирование
и изготовление
на собственном производстве
из металла, стекла, камня
Подробнее Почему нам доверяют
Мы можем гарантировать высокое качество наших биокаминов, поскольку самостоятельно производим все модели и тщательно контролируем каждый этап. Наши камины - безопасны и надежны, они станут отличным дополнением любой комнаты благодаря привлекательному внешнему виду и создадут неповторимую атмосферу уюта.
Создадим для Вас собственный, уникальный проект, который будет в единичном экземпляре и по своему уникальный! Мы всегда учитываем пожелания наших клиентов и трепетно относимся к каждой мелочи в заказе!
Осуществляется транспортными компаниями по вашему адресу "до двери" на основании данных о весе, объеме и расстоянии до Вашего города по расценкам перевозчика. При сумме заказа больше 50 000 рублей и 100% предоплате, доставка осуществляется бесплатно.
Мы всегда за то, чтобы к моменту оформления заказа Вы были уверены в том, что наш продукт подходит Вам на 100%! Поэтому, всегда готовы бесплатно предоставить услуги замерщика!
Помощь дизайнеров с многолетним опытом работы сделает ваш камин не только функциональным и безопасным, но и уникальным! Он красиво встроиться в интерьер и будет радовать вас и ваших близких долгие годы!
Возможен любой способ оплаты (наличными, безналично, картой). Возможно оформление рассрочки и кредита on-line.
Все порталы и топливные блоки изготовлены из высококачественных металлов на современном оборудовании с вниманием к деталям, что позволяет нам давать гарантию на корпус камина 10 лет.
Вопросы и ответы
- установка дровяного камина довольно сложна и занимает много времени сама по себе, не говоря уже о попытке вписать такой камин в готовый интерьер; - устройству дымохода следует уделить особое внимание, так как при ошибках в конструкции камин может начать дымить внутрь помещения; - необходимость установки дымохода сильно усложняет процесс размещения камина в городской квартире, особенно, если квартира располагается не на последнем этаже; - необходимо заранее продумать, где будут храниться дрова; - нужно помнить, что при использовании для топки дров потребуется постоянная чистка дымохода от золы;
Очистить зольную камеру камина до разжигания огня. Положить на колосники смятую бумагу, поверх положить сухие щепки, поджечь. Когда разгорятся щепки и наберется достаточно жара нужно уложить друг на друга дрова, крест на крест, по всей площади колосниковой решетки камина. Подкладывать следующую порцию дров в камин необходимо только после того, как ранее заложенные почти прогорят. Не ворошить горящие угли. Любой камин необходимо чистить раз в год, а также проводить ревизию и чистку дымохода. Делается это по окончании отопительного сезона. - Каковы тенденции современного рынка каминов? В последние 10 лет все более растущей популярностью пользуются небольшие, отдельно стоящие камины, являющиеся элементами интерьера, а не огромные сакральные сооружения для которых должен формироваться весь интерьер. Популярность таких каминов обусловлена оригинальностью дизайнерских решений, стоимостью, удобством в эксплуатации, и простотой монтажа. Установка таких каминов не требует создания стройплощадки в помещении со всеми вытекающими из этого неудобствами, они просто подключаются в заложенный в стене дымоход, если он, конечно же, там есть.
Такая печь нужна для того, чтобы отвести часть тепла из помещения, где стоит печь в те комнаты, где тепла не хватает. Очень неплохо такая печь работает совместно с существующей системой отопления, куда она будет сбрасывать излишки тепла, экономя солярку, электроэнергию или газ. Лучше всего себя показывает такая связка: печь или топка с водяным контуром + электрокотел с ночным тарифом на электроэнергию ночью на дешевой электроэнергии работает котел, а днем, можно потопить печку. Если в связку добавить еще GSM контроллер, то управляя электрокотлом дистанционно, Вы сможете поддерживать в доме нужную Вам температуру в свое отсутствие и прогревать дом к своему приезду.
Они различаются по типу используемого топлива, расположению в доме, а также по стилю исполнения. Выделяются следующие типы: Печь-камин; Печь-камин с водяным контуром (с возможностью подключения к отопительной системе); Камин уличный (устойчив к перепадам погоды, используется для ландшафтного дизайна); Камин-барбекю (уличный камин с возможностью приготовления пищи); Декоративный (используется исключительно в дизайнерских целях).
Выбирая материал для облицовки камина, следует уделить внимание нескольким факторам: 1. Во-первых, перед тем как приобретать агрегат, сразу нужно определиться с топочным материалом. Если она выполнена из дерева, то достаточно будет того, чтобы облицовка выдерживала 900°. Если будет использоваться твердое топливо, то нужно отдавать предпочтение материалу, выдерживающему температуру до 1200°. 2. Также следует определиться с местом расположения. Если у вас камин декоративный, который устанавливается в хорошо отапливаемом помещении, то с материалом можно не заморачиваться, т.к. подойдет любой. Если вы собираетесь установить камин, например, на летней веранде, то здесь следует выбирать такую облицовку, которая будет устойчива к морозам. 3. Еще один важный критерий выбора — это влагоустойчивость. При необогреваемом помещении, особенно важно, чтобы этот показатель был высоким. Если не соблюдать этот критерий, то очень скоро облицовка начнет отслаиваться и трескаться. 4. Также на выбор облицовочного материала оказывает влияние масса конструкции, которая в свою очередь зависит от места размещения агрегата. Если камин будет располагаться в частном доме на первом этаже, то на помощь может прийти дополнительный фундамент. В случае, если вы планируете устанавливать его на втором этаж, то здесь вес играет очень большую роль, поскольку перекрытие может попросту не выдержать большого веса каминной установки.
Азаров Алексей
Почему нам доверяют
Мы можем гарантировать высокое качество наших биокаминов, поскольку самостоятельно производим все модели и тщательно контролируем каждый этап. Наши камины - безопасны и надежны, они станут отличным дополнением любой комнаты благодаря привлекательному внешнему виду и создадут неповторимую атмосферу уюта.
Создадим для Вас собственный, уникальный проект, который будет в единичном экземпляре и по своему уникальный! Мы всегда учитываем пожелания наших клиентов и трепетно относимся к каждой мелочи в заказе!
Осуществляется транспортными компаниями по вашему адресу "до двери" на основании данных о весе, объеме и расстоянии до Вашего города по расценкам перевозчика. При сумме заказа больше 50 000 рублей и 100% предоплате, доставка осуществляется бесплатно.
Мы всегда за то, чтобы к моменту оформления заказа Вы были уверены в том, что наш продукт подходит Вам на 100%! Поэтому, всегда готовы бесплатно предоставить услуги замерщика!
Помощь дизайнеров с многолетним опытом работы сделает ваш камин не только функциональным и безопасным, но и уникальным! Он красиво встроиться в интерьер и будет радовать вас и ваших близких долгие годы!
Возможен любой способ оплаты (наличными, безналично, картой). Возможно оформление рассрочки и кредита on-line.
Все порталы и топливные блоки изготовлены из высококачественных металлов на современном оборудовании с вниманием к деталям, что позволяет нам давать гарантию на корпус камина 10 лет.
Индивидуальное проектирование
и изготовление
на собственном производстве
из металла, стекла, камня
Подробнее Товар представлен
в категориях
Эта модель представлена в разделах
Ранее вы смотрели
Для всех регионов РФ



